Nieuwe woonwijk in Leunen Zuid

18 jan 2021, 11:33Gemeente
janssen de jong leunen jan21
© Janssen en de Jong.
Het nieuwe jaar begint goed voor Leunen! In Leunen Zuid wordt namelijk een nieuwe woonwijk ontwikkeld met 50 duurzame woningen. Ger Peeters, bestuurder Wonen Limburg, Mark van Doorn, algemeen directeur Janssen de Jong Projectontwikkeling en Jan Jenneskens, wethouder gemeente Venray ondertekenden op 12 januari de exploitatieovereenkomst.
Duurzame woonwijk
“De betreffende grond is tien jaar geleden aangekocht door Janssen de Jong Projectontwikkeling en Wonen Limburg. In goed overleg met gemeente Venray en de klankbordgroep van de Dorpsraad en omwonenden hebben we nu een plan gemaakt om hier 50 woningen te ontwikkelen. Dat is fantastisch nieuws. De woningen worden energiezuinig en gasloos, wat goed past binnen onze ontwikkelvisie om duurzame woonwijken te creëren met aandacht voor circulariteit en natuurinclusiviteit”, aldus Mark van Doorn.
Ook gemeente Venray is verheugd over het aanbod van nieuwe woningen. Jan Jenneskens: “Met dit plan wordt een grote stap gezet in het concreet maken van de wens om meer woningen in de gemeente Venray te realiseren. Samen met alle betrokken partijen wordt hier een mooi gevarieerd aanbod gerealiseerd”.
Gevarieerd aanbod
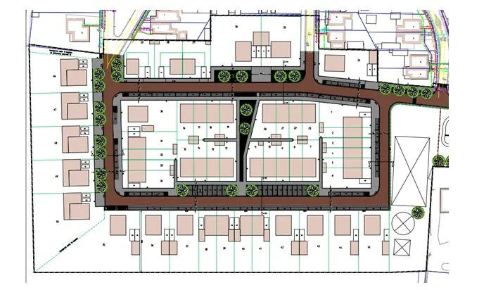
Het nieuwe woongebied ligt aan de zuidzijde van Leunen en sluit aan op de Vullingsstraat, het Sparveld en Rondeveld. Daarnaast wordt er een nieuwe ontsluitingsweg gerealiseerd richting de Albionstraat. Het gevarieerde woningaanbod bestaat uit 13 sociale huurwoningen en 10 huurwoningen in het middel dure segment (zowel gezinswoningen als levensloopbestendige woningen). Daarnaast komt er aanbod in het koopsegment: vier twee-onder-één-kapwoningen, vier rijwoningen, drie patiowoningen en worden er 16 vrije sector bouwkavels aangeboden.
Corporatie Wonen Limburg realiseert de 23 huurwoningen. “Een mix aan koop- en huurwoningen in diverse categorieën zorgt voor een gevarieerde woonwijk. De juiste ingrediënten voor de bewoners om er samen prettig te wonen. Naast de sociale huurhuizen, bouwen we ook huizen in het middenhuursegment. We vinden het belangrijk dat mensen die niet in aanmerking komen voor een sociale huurwoning, of niet kunnen of willen kopen, toch betaalbaar kunnen wonen. Daarom is indertijd Wonen Limburg Accent opgericht als volle dochter van Wonen Limburg: een commerciële verhuurder met het hart van een woningcorporatie,” aldus Ger Peeters.
Planning
Tegelijk met de ondertekening, is ook het bestemmingsplan ter inzage komen liggen. Verwacht wordt dat het plan dit jaar onherroepelijk wordt en er in het najaar gestart kan worden met de verkoop van de woningen en bouwkavels. In 2022 zal de bouw dan daadwerkelijk starten. De verhuur van de huurhuizen verwacht de corporatie begin 2022 te kunnen starten.
Kijk voor meer informatie op: www.woneninleunenzuid.nl .
loading

Loading